Дом 120 м² на участке 7 сот.

Адрес скрыт
К списку объявлений
Регион

Башкортостан

Город

Уфа

Район / Метро

Кировский

Изображения
Скачать изображения (25)
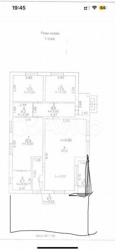
Планировка
Планировка
Площадь общая

120 м2

Площадь участка

7 м2

Этажность

- / 1

Описание: Продается!

Одноэтажный современный со вторым светом дом.

Общая площадь – 170 кв. метров, жилая площадь 123кв.м. Высота потолков 3 м.

В доме начались внутрнее работы прекрасная возможность внести ваши изменения.

дом расположен на участке 7 соток!

в 10 минутах езды от центра города Уфа.

Закрытый Элитный коттеджный поселок - Лесная поляна, в районе Цветы Башкирии!

Не далеко от поселка будет построена 2-я очередь ЖК Цветы Башкирии. где предусмотрена школа и детский сад

в коттеджном поселке центральный Газ, Электричество, дороги и центральная вода.

В этом году будут установлены шум защитные щиты вдоль трассы.

Асфальт по всем улицам.

Конструктив:

-фундамент бурозаливные сваи на ростверке.

-стены газоблок толщиной 400

-облицовка короед и природный камень.

-крыша черепица металлическая

-утепление базальтовая каменная вата и эковата .

- также установлена ливневка со своей системе водоотведения.

- шамбо переливное, 1,5 м кольца

- скважина в кессоне 13 м.
Стоимость

12 500 000 ₽

104 167 ₽/м²
Актуальность объекта:
Обновлено: 30 июня 24, 18:26
Размещено: 30 июня 24, 18:26