Дом 100 м² на участке 5 сот.

Адрес скрыт
К списку объявлений
Регион

Крым

Город

Севастополь

Изображения
Скачать изображения (39)
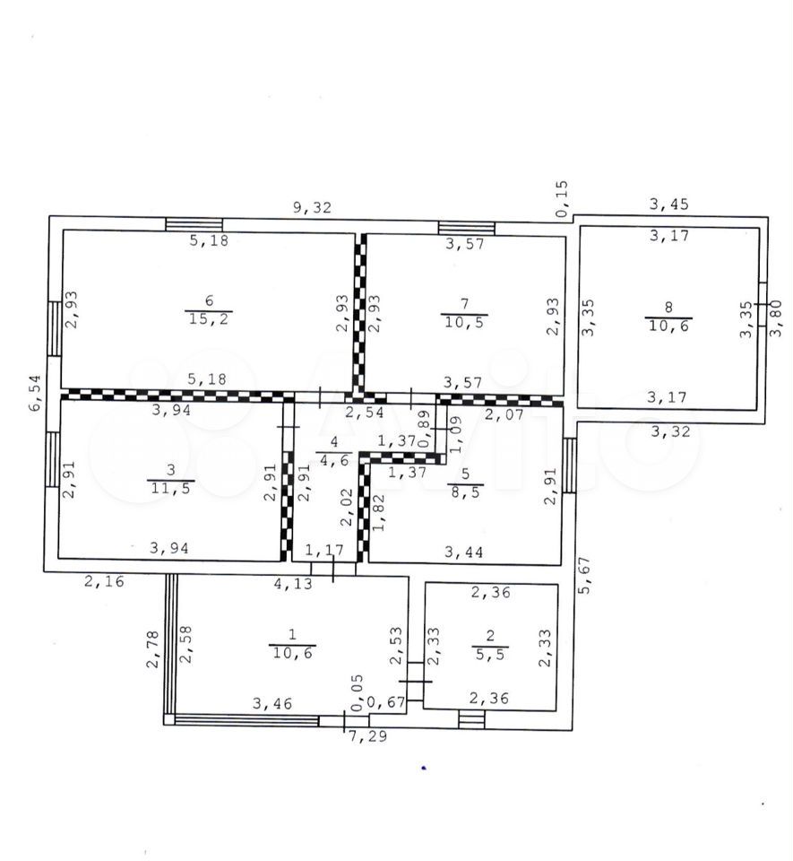
Планировка
Планировка
Материал стен

Кирпич

Расстояние до города

13

Расстояние до города

13

Площадь общая

100 м2

Площадь участка

5 м2

Этажность

- / 1

Описание: Продам очень хороший дом на побережье песчаного пляжа Черного моря на охраняемой viр-территории «Звездный берег».
Вся территория благоустроена, развитая инфраструктура, к Вашим услугам: два бассейна, кафе и рестораны, детские и спортивные площадки, летний кинотеатр, концертный комплекс, магазины, благоустроенная набережная, чистейший песчаный и галечный пляжи. В пяти минутах езды находятся три детских сада, две школы, рынки. Дом приносит очень хороший доход в теплый сезон, зимняя сдача в аренду так же предусмотрена - быстрая окупаемость вложения!

Четырехкомнатный дом с евро ремонтом с использованием материалов хорошего качества. На стенах обои, подогрев пола, высота потолков 2.8 метра, все комнаты отдельные (не проходящие) вторая линия от моря - до пляжа буквально 1 минута пешком!
Большой личный двор для размещения мангальной зоны и зоны отдыха.
Личный выход на песочный пляж! Вторая линия от моря!

Владелец, продажа без посредников и без комиссии. Возможен торг
Стоимость

10 000 000 ₽

100 000 ₽/м²
Актуальность объекта:
Обновлено: 29 июня 24, 12:37
Размещено: 29 июня 24, 12:37