Дом 380 м² на участке 4,7 сот.

Адрес скрыт
К списку объявлений
Регион

Краснодарский край

Город

Новороссийск

Район / Метро

Приморский

Изображения
Скачать изображения (38)
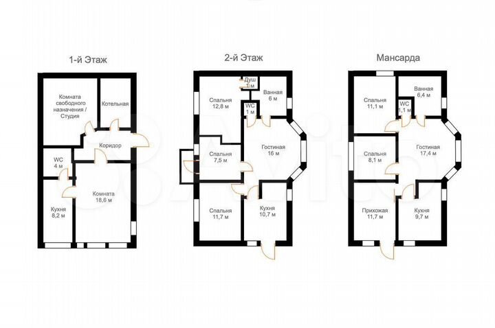
Планировка
Планировка
Планировка
Материал стен

Кирпич

Площадь общая

380 м2

Площадь участка

4 м2

Этажность

- / 3

Описание: Собственик продаёт Дом и вспомогательное сооружение на земельном участке в центре территории Цемдолина. Смотрите видео.

ИНФРАСТРУКТУРА:
Преимуществом данного объекта являются : трехсторонний доступ по периметру земельного участка , локация в центре ( КРТ ) комплексного развития территории в окружении социальных объектов местного значения:
-пятерочка и другие магазины в 150 метрах
- аптека в 150 метрах
- валдберис, озон, Яндекс маркет, сдэк в 3 х минутах пешком
- школа
- детский садик
- церковь
- парк, сквер
- стадион
- остановка общественного транспорта.

ВОЗМОЖНОЕ ЦЕЛЕВОЕ ИСПОЛЬЗОВАНИЕ:
Для индивидуального проживания с возможностью смешенного использования.

Для широкого спектра готового бизнеса в южном регионе, целевой аудиторией которой будет являться:
-отдыхающие и гости города-героя ,
-посетители социальных объектов ,
-жители частного сектора, а главное многоэтажных жилых домов .

ДОКУМЕНТЫ:
Здание в собственности.Земельный участок в собственности. Быстрый выход на сделку.

КОММУНИКАЦИИ:
Магистральный газ, электричество 15 кВт, скважина с питьевой водой 25 куб. м. в сутки, водоснабжение не прекращается при отключении электричества , интернет оптоволокно, канализация.

ПЛАНИРОВКА:
три-этажа имеют отдельные выходы,
индивидуальные приборы учёта газа, воды и электричества, программируемые электрические ворота с дистанционным управлением, видео наблюдение с охранной системой.
Вспомогательное здание имеет 7 отдельных помещений.
Продается с мебелью и техникой.

МАП (Месячная арендная плата от 195 000 в месяц)
Дом спроектирован таким образом , что его можно использовать многофункционально и под офисы и под сдачу и для проживания самих хозяев дома и членов его семьи в отдельных автономных помещениях.
Продается в связи с переездом в другой регион.
Стоимость

42 000 000 ₽

110 526 ₽/м²
Актуальность объекта:
Обновлено: 18 июня 24, 10:59
Размещено: 10 июня 24, 13:57