2-к. квартира, 49,9 м², 2/4 эт.

Адрес скрыт
К списку объявлений
Регион

Калининградская область

Город

Калининград

Район / Метро

Ленинградский

Изображения
Скачать изображения (10)
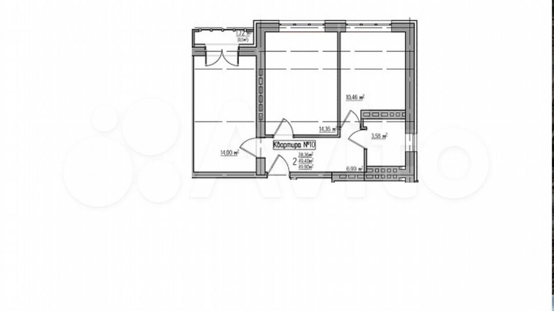
Планировка
Планировка
Тип

Вторичка

Количество комнат

2

Площадь общая

49 м2

Площадь жилая

29 м2

Площадь кухни

11 м2

Этажность

2 / 4

Описание: Продается двухкомнатная квартира на 2-м этаже четырехэтажного жилого дома в новом Жилом Комплексе «Террасы Александрии» на ул. Стрелецкой 21А.

Ориентиры: ул. Юрия Гагарина, Куйбышева, Литовский Вал.

Квартира в качественном сером ключе, с высотой потолков 3,07 метра.

Ознакомьтесь с планировкой на фото!

Общая площадь квартиры: 49,9 м. кв.

· комната 15.00 м.кв.

· комната 14.00 м.кв.

· кухня 11.00 м.кв.

· санузел 3.50 м.кв.

· холл 7.00 м.кв.

- балкон 2,00 м.кв

Серый ключ:

· система автономного отопления - двухконтурный газовый котел;

· сантехническая, электрическая разводка;

· приборы учета электроэнергии, воды и газа;

· стены оштукатурены;

· на полу цементно-песчаная стяжка;

· установлены стеклопакеты – широкие просторные окна;

· входная металлическая дверь.

Современная малоэтажная архитектура, деревянными элементами фасада, зеленые дворы с мостиками над ручьем в активно-развивающимся, экологически чистом «зеленом» районе города.

Дом из высококачественного красного керамического кирпича;

В доме установлен пассажирский-грузовой лифт;

Территория дома благоустроена и огорожена;

Тихое место, вторая линия от дороги, нет постороннего шума;

Большая, удобная авто-парковка, шлагбаум.

Детская площадка, территория для прогулок у пруда;

Удобная транспортная развязка: выезды на главные улицы города - Невского и Гагарина.

Развитая инфраструктура в шаговой доступности: супермаркеты Спар, Виктория, детские сады, школы, БФУ им. Канта, фитнес-центры, различные медицинские центры, аптеки. По близости множество достопримечательностей города – музеи, парк Юность и Верхнее озеро с прогулочными пешими и велосипедными дорожками, тихие уютные места центра города для отдыха и развлечения.
Стоимость

6 200 000 ₽

126 531 ₽/м²
Актуальность объекта:
Обновлено: 18 июня 24, 19:07
Размещено: 18 июня 24, 19:07