Регион

Калининградская область

Город

Калининград

Изображения
Скачать изображения (2)
Расстояние до города

6

Расстояние до города

6

Площадь общая

8 м2

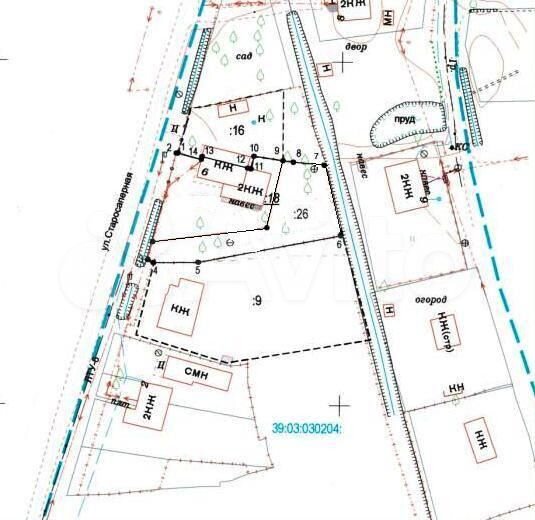
Описание: Земельный участок в городе по улице Старосаперная (ориентир Орудийная, Гагарина, Невского, Пехотная, Краснокаменная ).
Улица тупиковая - очень удобна для проживания, мало машин.
Площадь участка 616 кв.м, но по границе участка проходит дренажный ручей за счёт которого площадь участка увеличина до 8 соток. На участке природный газ, вода, септик, по границе участка электричество - 15 кВт. Участок в собственности. Кадастровый номер 39:03:030204:26
Рассматриваем продажу или обмен на квартиру, дом в городе Калининграде.
Стоимость

5 000 000 ₽

625 000 ₽/м²
Актуальность объекта:
Обновлено: 02 июня 24, 09:57
Размещено: 30 апреля 24, 10:12