Дом 142 м² на участке 8,4 сот.

Адрес скрыт
К списку объявлений
Регион

Удмуртия

Город

Ижевск

Изображения
Скачать изображения (3)
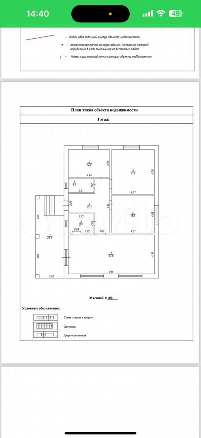
Планировка
Планировка
Материал стен

Кирпич

Расстояние до города

12

Расстояние до города

12

Площадь общая

142 м2

Площадь участка

8 м2

Этажность

- / 1

Описание: Продается дом от собственника. В дом заведено электричество 15кв, сделан выгреб , заведенна вода . В доме сделана пред чистовая отделка . Улица Бархотная это отдельна улица от все там всего будет одиннадцать домов очень тихая улица с классным видом на пруд
Стоимость

6 700 000 ₽

47 183 ₽/м²
Актуальность объекта:
Обновлено: 12 июня 24, 08:59
Размещено: 14 марта 24, 08:52