Коттедж 90 м² на участке 8 сот.

Адрес скрыт
К списку объявлений
Регион

Башкортостан

Город

Уфа

Изображения
Скачать изображения (16)
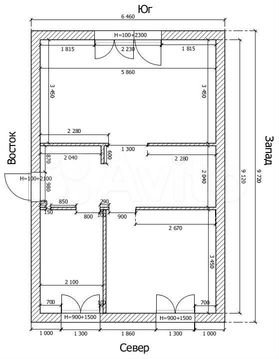
Планировка
Планировка
Планировка
Материал стен

Кирпич

Расстояние до города

19

Расстояние до города

19

Площадь общая

90 м2

Площадь участка

8 м2

Этажность

- / 2

Описание: 🚀 Акбердино - это район с развитой инфраструктурой в 20км от Уфы по Нагаевскому шоссе:

- В шаговой доступности: остановка транспорта (маршрут №163 каждые 15-20 минут в Уфу ездит), бесплатного школьного автобуса, Монетка, Пятерочка, К&Б, автомойка, АЗС Лукойл
- Своя школа и детские сады
- Детские центры развития, оздоровительный комплекс Ташлы
- Свой сельсовет, прописка Иглинский район, сельские тарифы на ЖКУ

🏡 Коттедж 90 кв.м на участке 8 соток, коробка готова, дорога круглый год, в СНО Акбердинское соседи живут постоянно, дороги зимой чистятся трактором

💰 Цена в объявлении указана за дом и земельный участок на этапе строительства по договору подряда на стадии готовой коробки

✅ Аккредитованный Застройщик Сбербанк, ВТБ, Альфа-Банк, Россельхозбанк

⭐ IТ Ипотека, с гос поддержкой и семейная ипотека

💯 БЕЗ Поручителя, Залога и Первоначального взноса!

💥 Дисконт за наличный расчёт

💒 Отделка получистовая с коммуникациями: отопление, электрика, автономное водоснабжение, водоотведение

💡 Электричество 380В 10 кВт подключено и заведено в дом

⬜ Планировка: 3 спальни, кухня-гостиная, 2 с/у

🎁 Готовность июль-август 2024г.

✅ Также возможно строительство по Подряду БЕЗ Поручителя и Залога на вашем или другом участке по вашему проекту!
Стоимость

5 200 000 ₽

57 778 ₽/м²
Актуальность объекта:
Обновлено: 29 мая 24, 06:16
Размещено: 12 декабря 23, 14:19