4-к. квартира, 108 м², 2/3 эт.

Адрес скрыт
К списку объявлений
Регион

Калининградская область

Город

Калининград

Район / Метро

Ленинградский

Изображения
Скачать изображения (12)
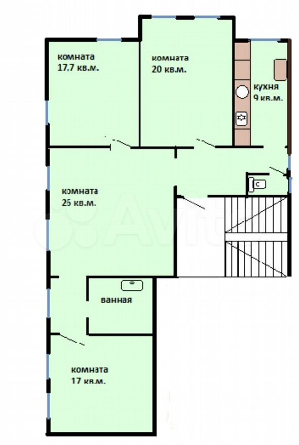
Планировка
Планировка
Планировка
Тип

Вторичка

Количество комнат

4

Площадь общая

108 м2

Площадь жилая

80 м2

Площадь кухни

9 м2

Этажность

2 / 3

Описание: Прекрасная 4к.квартира в очаровательном малоквартирном доме с придомовой территорией 18 соток, закрытым паркингом, беседкой с зоной барбекю (+коптильня), профессиональным озеленением. Удачная планировка, автономное отопление. Общая площадь 108 кв.м. + цокольные помещения 43 кв.м. В цоколе 2 комнаты (26 и 17 м., высота потолка 2,3 м.). На закрытой придомовой территории изобилие цветов: непрерывно цветут розы. Высажен виноград, который успевает созревать. Яблони, вишня и алыча обычные, а черешня и груши великолепные. Огромные липы с домиком на дереве для детей (пока недострой). Привлекательный район. Зелень и тишина. Комфортный короткий путь к центру (15 мин пешком до Верхнего озера) и выезду за город (всегда без пробок). В соседнем доме магазин и студия йоги. В двухста метрах - крупнейший центр спорта для детей "Созвездие" (художественная гимнастика, карате и т.д.). Чуть дальше - Альмак, пятерочка и т.д. Цена снижена в связи коррекцией цены покупаемого объекта. Собственник.
Стоимость

11 590 000 ₽

107 315 ₽/м²
Актуальность объекта:
Обновлено: 06 июня 24, 07:31
Размещено: 20 мая 24, 13:07