Дом 85 м² на участке 10 сот.

Адрес скрыт
К списку объявлений
Регион

Пермский край

Город

Пермь

Изображения
Скачать изображения (34)
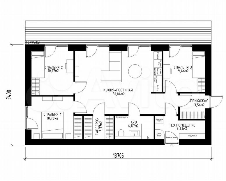
Планировка
Планировка
Материал стен

Кирпич

Расстояние до города

16

Расстояние до города

16

Площадь общая

85 м2

Площадь участка

10 м2

Этажность

- / 1

Описание: ‼️ОТКРЫТЫ ПРОДАЖИ

✅ДОМ 85м2 + ЗЕМЕЛЬНЫЙ УЧАСТОК 10 соток

✅ГОТОВНОСТЬ В ПРЕДЧИСТОВОЙ ОТДЕЛКЕ 3кв.2024г., но возможен вариант сдачи дома с чистовой отделкой «под ключ».

✔️10,5млн₽ с отделкой «под ключ»

✔️8,5млн₽ с предчистовой отделкой

✅ВАРИАНТЫ ОПЛАТЫ:

✔️НАЛИЧНЫЕ

✔️СЕРТИФИКАТЫ

✔️ИТ-ИПОТЕКА ДО 5%

✔️СЕМЕЙНАЯ ИПОТЕКА ДО 6%

✔️ИПОТЕКА С ГОСПОДДЕРЖКОЙ ДО 8% (именно эта программа действует до 01.07.24г.)

✔️К дому выполнен хороший подъезд, а перед домом всегда есть место для 2-х машин на забетонированной площадке!

✔️Дом расположен в очень живописном месте в окружение леса, но с хорошей инфраструктурой: рядом остановка общественного транспорта, а до центра Перми всего 15-20 минут на машине!

✔️В самом доме будет сделана предчистовая отделка: ровный бетонный пол, на стенах выполнена механизированная штукатурка по сетке, так же выполнена вся разводка воды, канализации, электрики, освещения и вентиляции, стены тех.помещения будут выложены белой плиткой, а также будет установлено всё оборудование, в т.ч. эл.котёл Рrоthеrm и плоский водонагреватель Аристон на 100 литров.

✔️В каждой комнате установлены энергоэффективные панорамные окна в пол.

✔️До мелочей продуманы все системы: освещения, электричества, вентиляции, отопления, водоснабжения и водоотведения.

✔️Ищем хозяина, который будет любить наш дом.

✅Решайтесь!



✔️Скандинавские технологии частного домостроения

✔️Современная планировка

✔️Улучшенный дизайн

✔️Качественная отделка

✔️Хорошая шумоизоляция

✔️Состав стены, пола и покрытия удовлетворяет повышенным теплотехническим нормам

✔️Только тёплый пол, как система отопления

✔️Энергоэффективное остекление

✔️Низкие коммунальные платежи

✅ПРИГЛАШАЮ НА ПРОСМОТР😉
Стоимость

8 500 000 ₽

100 000 ₽/м²
Актуальность объекта:
Обновлено: 04 июня 24, 17:58
Размещено: 04 июня 24, 17:58