1-к. квартира, 52 м², 7/9 эт.

Адрес скрыт
К списку объявлений
Регион

Калининградская область

Город

Калининград

Район / Метро

Ленинградский

Изображения
Скачать изображения (39)
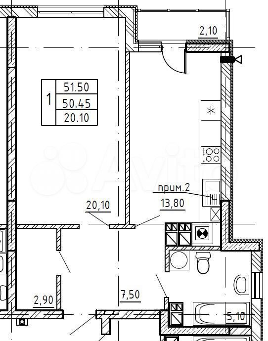
Планировка
Планировка
Тип

Вторичка

Количество комнат

1

Площадь общая

52 м2

Площадь жилая

20 м2

Площадь кухни

14 м2

Этажность

7 / 9

Описание: Новая .кв ,.красивый+ремонт .Никто ,не,жил. !!!!!!!!МОЖНО в ИПОТЕКУ!!!!!!! Продается 1-комнатная 52 метра квартира в ЖК «Делюкс ». Дом постройки 2023 года (дом сдан).

Комплекс состоит из двух девятиэтажных кирпичных домов,( кирпич керамический ) в тихой зеленой частной застройки , Ленинградского района . Бесшумный лифт !

Развитая инфраструктура. Благоустроенная территория :большая парковка , спортивные, детские игровые площадки, места для отдыха взрослых. В шаговой доступности: детский сад около 200 метров , Sпар супер маркет 300 метров школа на артиллерийской и Гагарина , Куйбышева , много разных магазинов , остановка общественного транспорта. Удобный выезд на окружную дорогу ,ул. А. Невского , ул. Гагарина к морю-в аэропорт.

Коммуникации и характер отделки квартиры.

Квартира однокомнатная хорошей планировки с большой застекленной лоджией ,вид в окнах на улицу артиллерийской -шахматная в сторону (ЖК цветной бульвар ) Кухня 14 КВ , гардероб 3 КВ , спальня 20 КВ , прихожая 7.5КВ , ванная 5.3 лоджия 2.1 кв .

1.есть теплый полна кухне -коридор- ванная - гардероб

2. Ремонт дизайнерский

3. Входная дверь повышенной тепло-шумоизоляцией (новая)

4. Автономное газовое отопление -двухконтурный мощный котел. 23 киловатта

5. Богатое освещение трековые светильники

6. Новая кухня + новая техника на гарантии!!!

7. Новая правильная электрика

8. Потолки все под покраску

9. Система гардероба. 10. Стиральная машина .

11. Новая кровать с подъёмным механизмом + матрас

12. Диван на кухне + телевизор Новый ремонт , новая техника , новая кухня , ни кто не жил !!! Квартира в центре дома очень теплая , хорошая шумоизоляция из за толстых стен керамического пористого кирпича и солнечной стороны окон , соседей не слышно ! Вид на закат солнца запад 🌇 все что в квартире на фотографиях остается новому обладателю !!!!!)
Стоимость

7 690 000 ₽

147 885 ₽/м²
Актуальность объекта:
Обновлено: 29 мая 24, 08:49
Размещено: 31 января 24, 19:43