Дом 155 м² на участке 6,3 сот.

Адрес скрыт
К списку объявлений
Регион

Краснодарский край

Город

Новороссийск

Район / Метро

Приморский

Изображения
Скачать изображения (18)
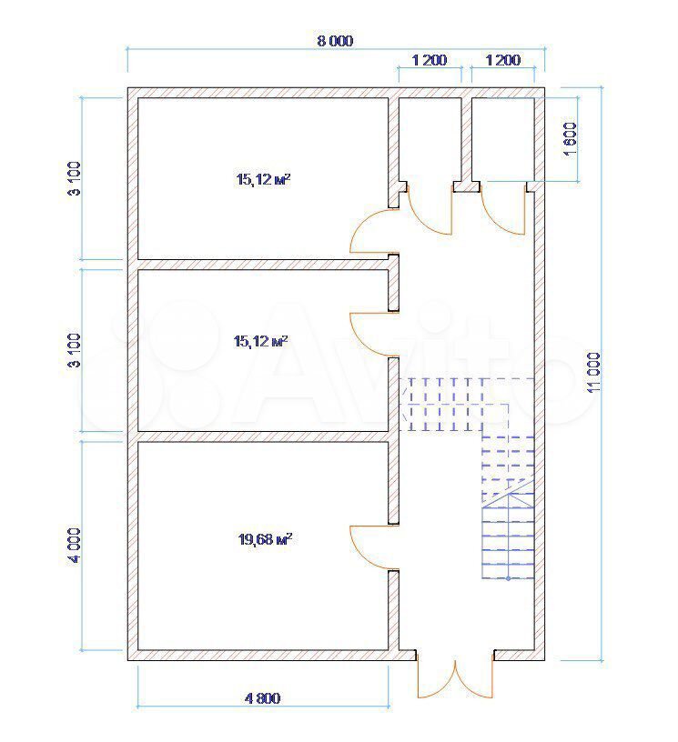
Планировка
Планировка
Площадь общая

155 м2

Площадь участка

6 м2

Этажность

- / 2

Описание: Продаю Новый дом. Общая площадь 155 кв.м. Земельный участок 6,3 сотки. Дом построен из качественных и дорогих строительных материалов. В доме кухня, две спальни , сан узел и бойлерная на первом этаже. Второй этаж свободной планировки. Дом сделан под чистовую отделку. Электричество 15 кВт, Скважина, септик. Отопление электрическим котлом. Тёплый пол на кухне, сан узле и коридоре , в спальнях радиаторы. Район расстраивается , вся инфраструктура находится рядом, остановка в шаговой доступности. Цена указана за наличный расчёт, ипотека под гос программу может подойти . Обычная ипотека или военная ипотека . Дом стоит на кадастре.
Стоимость

7 000 000 ₽

45 161 ₽/м²
Актуальность объекта:
Обновлено: 02 июня 24, 11:04
Размещено: 03 января 24, 11:51