2-к. квартира, 67 м², 17/17 эт.

Адрес скрыт
К списку объявлений
Регион

Волгоградская область

Город

Волгоград

Район / Метро

Советский

Изображения
Скачать изображения (13)
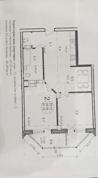
Планировка
Планировка
Тип

Вторичка

Количество комнат

2

Площадь общая

67 м2

Площадь жилая

29 м2

Площадь кухни

12 м2

Этажность

17 / 17

Описание: Продается 2х комнатная квартира (евротрёшка) - 67 м².
В квартире остаётся вся мебель и бытовая техника - заезжай и живи!
Останется только развесить свои вещи.
Вам не придется тратить дополнительные средства на обустройство квартиры, что очень важно при покупке квартиры, т.к. она покупается всегда на последние...
Квартира очень тёплая зимой, даже жарко...

Дорогая входная дверь.

Кухня-гостиная с просторным холлом (современный кухонный гарнитур с встроенным духовым шкафом, варочная панель, вытяжка, холодильник, стол, стулья), сплит-система и телевизор.
Также размещён дополнительный диван, на котором любители ночной работы за ноутбуком могут работать не отвлекая от сна остальных членов семьи.

Отдельная и удобная гардеробная, для хранения всех видов одежды и обуви.

Совмещённый с ванной санузел, в котором установлены стиральная машина, водонагреватель и система тёплых полов.

Спальня - двуспальная кровать с качественным матрасом, тумба под хранение мелких предметов, плюсом в спальне имеется встроенный просторный шкаф.

Во второй комнате (можно использовать под детскую) размещён двухспальный диван и вместительный встроенный шкаф.

Просторная и вместительная застеклённая лоджия, откуда открывается прекрасный вид на р.ВОЛГУ (где можно организовать прекрасную лаундж зону).

Кроме того, квартира очень хорошо подходит под готовый арендный бизнес, купил - сдал и на следующий день получаешь доход, без дополнительных вложений.

Дом новый, красивая и благоустроенная дворовая территория, с газоном, элитными деревьями и хорошей детской площадкой.
Вся инфраструктура в шаговой доступности, трамвай, 2ая продольная, магазины, рынок, школы, детские сады.

Я собственник, продаю сам, объявление размещаю сам и только сам!, в помощи риелторских агентств не нуждаюсь.
Однако ГОТОВ ЗАПЛАТИТЬ КОМИССИЮ РИЕЛТОРУ(обсуждается индивидуально), который приведёт на просмотр и дальнейшую сделку реального покупателя.

Звоните и приходите, хотя бы посмотреть!
Стоимость

8 100 000 ₽

120 896 ₽/м²
Актуальность объекта:
Обновлено: 28 мая 24, 20:52
Размещено: 22 ноября 23, 10:50