Таунхаус 249 м² на участке 2 сот.

Адрес скрыт
К списку объявлений
Регион

Калининградская область

Город

Калининград

Район / Метро

Центральный

Изображения
Скачать изображения (27)
Планировка
Планировка
Планировка
Площадь общая

249 м2

Площадь участка

2 м2

Этажность

- / 3

Описание: Остались последние три новых готовых таунхауса в престижном районе г. Калининграда «Амалиенау».

ОБЪЕКТЫ АККРЕДИТОВАНЫ В БАНКЕ ВТБ И ПОДХОДЯТ ПОД ЛЬГОТНУЮ ИПОТЕКУ!

В шаговой доступности супермаркет, ресторан, фитнес центр. Удобный выезд к морю и в аэропорт. Комплекс состоит из семи сблокированных таунхаусов с идеальной планировкой для жизни. Таунхаусы построены, введены в эксплуатацию и зарегистрированы!
Каждый таунхаус регистрируется как самостоятельной объект недвижимости с собственным земельным участком, площадью 2 ( две ) сотки.
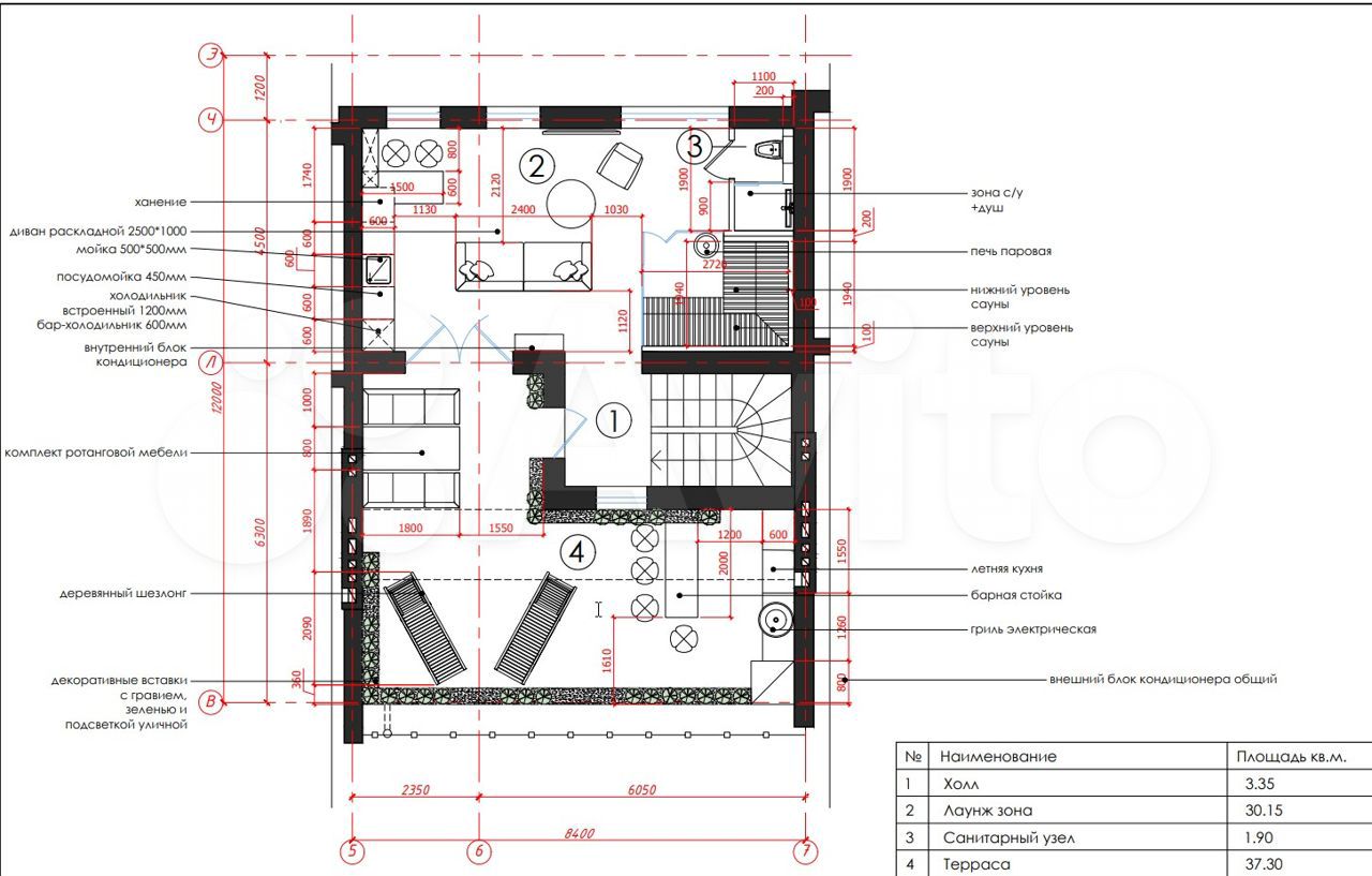
Три этажа с эксплуатируемой террасой (площадью 40 м2) с подогреваемым полом на третьем уровне с отличным видом без многоэтажных домов в непосредственной близости.
Терраса спроектирована на южную солнечную сторону, предусмотрена техническая возможность установка летней кухни и гриля.
Таунхаус площадью 249 кв.м, имеет три уровня:
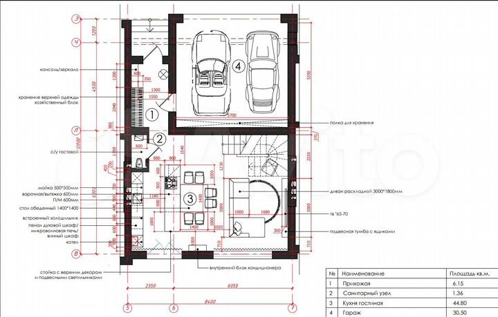
Первый этаж: кухня-столовая, гостиная, санузел, прихожая, встроенный гараж на 2 машины, площадью 30 м2.
Второй этаж: три жилых комнаты, гардеробная комната, большой санузел с окном.
Из двух комнат выход на балкон.
Третий этаж : большая жилая комната 34 м2 и эксплуатируемая терраса ( 40 м2) с подогреваемым полом.
Гаражные ворота — автоматические марки НОRМАNN производство Германия, шириной 5 метров. Автоматика на въездные распашные ворота (на территорию) — марки НОRМАNN производство Германия
Таунхаусы построены без разделения внутреннего пространства.
Возможна корректировка внутренних помещений под ваши пожелания.
Высота потолков 3 (три) метра. Автономное газовое отопление. Предусмотрена возможность организации тёплых полов на первом этаже и в санузлах второго этажа.
Электроэнергия 15 кВт (три фазы) на каждый таунхаус. Центральное водоснабжение и канализация.
Дом является энергоэффективным, стены построены из качественных европейских газобетонных блоков Уtоng толщиной 40 см (производство Польша).
Используемые материалы для отделки фасада: штукатурка Сараrоl, клинкерная плитка Lоdе (Германия). Качественное строительство с фотофиксацией всех этапов стройки.
Оконные конструкции: металлопластиковые, с двойным стеклопакетом КАLЕVА с фурнитурой RОТО производства Германия.
Входная сейф-дверь с терморазрывом ТМ «Стальная Линия» производство Беларусь.
Все подъездные пути - асфальтированные дороги.

По договоренности возможна передача в состоянии "Белый ключ".

Готовый дизайн проект Таунхауса в подарок!
Стоимость

22 500 000 ₽

90 361 ₽/м²
Актуальность объекта:
Обновлено: 28 мая 24, 23:22
Размещено: 21 сентября 23, 12:27