Дом 128 м² на участке 7,5 сот.

Адрес скрыт
К списку объявлений
Регион

Удмуртия

Город

Ижевск

Изображения
Скачать изображения (12)
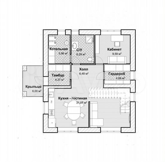
Планировка
Планировка
Планировка
Материал стен

Кирпич

Расстояние до города

13

Расстояние до города

13

Площадь общая

128 м2

Площадь участка

7 м2

Этажность

- / 2

Описание: Дом мечты недалеко от леса и речки в 10 км от Ижевска в КП Ближняя Усадьба!
Светлый просторный каменный дом 128 кв.м. на участке 7,5 сот. от застройщика.

Особое счастье оказаться в оазисе тишины и спокойствия в 10 мин езды от Ижевска! Здесь можно поставить машину на свою парковку, выпить чай на террасе, поиграть с детьми на свежем воздухе, пожарить шашлыки с друзьями, прогуляться к речке.

В доме есть все коммуникации для комфортной жизни: вода из артезианской скважины, электричество, канализация, газ (на участке). Стены толщиной 50 см из керамического блока и кирпича сохраняют в доме тепло зимой и прохладу летом. Расходы на отопление и другие КУ вас приятно удивят.

У дома надежный фундамент: сваи глубиной 3 м, утепленный ростверк, железобетонная плита. Межэтажные перекрытия — железобетонные плиты заводского производства.

В доме удобная планировка. Тамбур отделяет грязную зону от остальных помещений. В котельной безопасно разместились все инженерные системы. Также на первом этаже есть просторный санузел и гардеробная с окном, чтобы было удобно хранить и пользоваться личными вещами. Солнечную комнату-кабинет на первом этаже оценят те, кому важно уединиться в комфортной обстановке для работы или творчества. Уютная светлая кухня-гостиная со вторым светом для приятных вечеров в кругу семьи. Из окна кухни открывается вид на участок, занимаясь приготовлением, вы сможете видеть, чем на улице заняты дети. Второй этаж - приватная часть дома для отдыха и уединения хозяев. Здесь 3 спальни с большими окнами, из которых видно лес, также санузел и гардероб. В холле второго этажа можно с комфортом расположиться в кресле с книжкой или отдыхать, наслаждаясь закатом и видом на город через огромные панорамные окна.

Отделка предчистовая: электричество (разводка по дому), электрокотел, газовый котел, теплые полы и радиаторы, стяжка пола, штукатурка на стенах. Возможна продажа с чистовой отделкой. Рассчитывается индивидуально. На фото — пример дизайн-проекта.

Для приватности по периметру участка установлен забор с трёх сторон.

КП Ближняя Усадьба - это благоустроенный и комфортный для проживания посёлок с хорошими дорогами, детской площадкой, магазином, остановкой общественного транспорта. Для семей с детьми в посёлке есть государственный детский сад, в школу детей забирает школьный автобус.

Дом подходит под любую ипотеку: сельскую, семейную, гос.поддержку т.д.
Продажа от застройщика. Гарантия на дом.
Дом на этапе строительства. Срок сдачи июнь 2024.

Звоните, отвечу на любые вопросы!
Не стоит откладывать на потом мечту о собственном доме!
Стоимость

7 490 000 ₽

58 516 ₽/м²
Актуальность объекта:
Обновлено: 25 мая 24, 10:41
Размещено: 23 ноября 23, 12:49