1-к. квартира, 42,7 м², 5/8 эт.

Адрес скрыт
К списку объявлений
Регион

Алтайский край

Город

Барнаул

Район / Метро

Железнодорожный

Изображения
Скачать изображения (22)
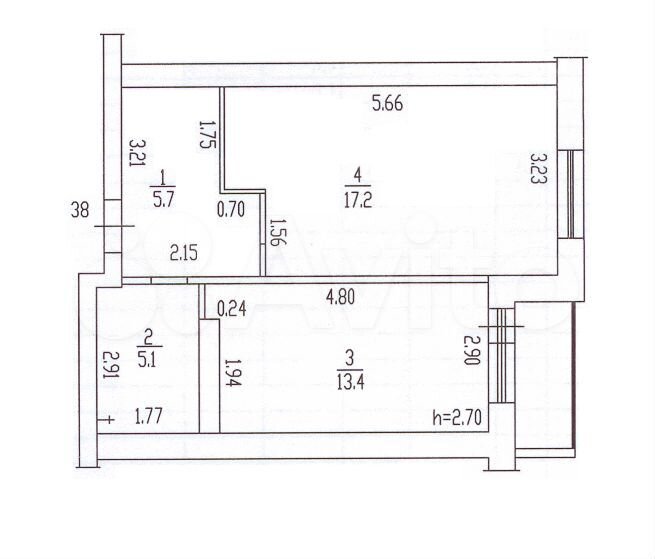
Планировка
Планировка
Тип

Вторичка

Количество комнат

1

Площадь общая

42 м2

Площадь кухни

13 м2

Этажность

5 / 8

Описание: Шикарная евро-двухкомнатная квартира близко к центру! Монолитно-кирпичный дом 2018 года постройки небольшой этажности!

Удачное расположение дома: в 5 минутах от Ленинского проспекта, но в то же время удалено от шумных дорог.

Продуманная планировка квартиры позволит комфортно обустроить пространство. Кухня-гостиная 13,4 кв.м. с выходом на лоджию и просторная комната 17,2 кв.м. Площадь квартиры без учета лоджии - 41.4 кв.м.

В квартире выполнен качественный ремонт. В стоимость входят: кухонный гарнитур со встроенной техникой, холодильник, 2 кондиционера, стол, стулья, гардеробная, встроенный шкаф-купе в комнате, водонагреватель, стиральная машина и тумба в ванной комнате.

В непосредственной близости расположено несколько остановок общественного транспорта, школы, детские сады и магазины.

Дом оборудован системой видеонаблюдения.

2 взрослых собственника! Без долгов и обременений! Полная стоимость в договоре. Чистая продажа.

Приходите на просмотр, вам обязательно понравится!
Стоимость

6 000 000 ₽

142 857 ₽/м²
Актуальность объекта:
Обновлено: 24 мая 24, 14:19
Размещено: 20 мая 24, 16:01