Торгово-офисные помещения, ул. Вакуленчука 53/5

Адрес скрыт
К списку объявлений
Регион

Крым

Город

Севастополь

Изображения
Скачать изображения (5)
Планировка
Планировка
Планировка
Планировка
Планировка
Площадь общая

78 м2

Этажность

0 / -

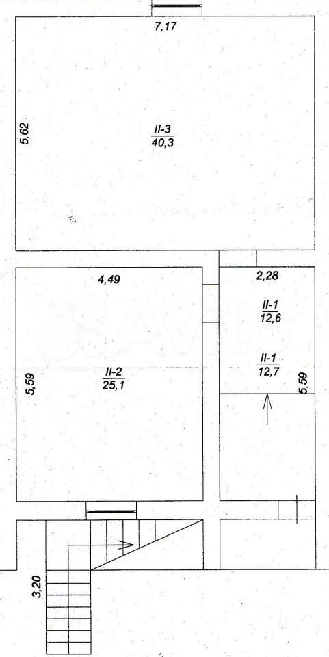
Описание: Продаются три многоцелевых помещения, общей площадью 78.1 кв.м в цокольном этаже жилого дома.
Помещения: 40.3 кв.м; 25.1 кв.м; 12.7 кв.м.
Под офис, магазин, парикмахерскую, кафе, склад.
Адрес: Жилой комплекс "Гераклейский", ул. Вакуленчука 53/5.
Дом расположен вдоль дороги на авторынок. Дом сдан.
Стены из ФБС. На полу стяжка. Состояние - после строителей, все коммуникации.
Возможен обмен, желательно на 1-2-х комнатную квартиру в Севастополе, в районе Стрелецкой, от ул. Шостака до Студенческого городка. Рассматриваю и другие варианты обмена на жилую недвижимость. Предлагайте!
Стоимость

6 100 000 ₽

78 205 ₽/м²
Актуальность объекта:
Обновлено: 23 мая 24, 15:52
Размещено: 16 сентября 23, 12:24