3-к. квартира, 123,9 м², 9/10 эт.

Адрес скрыт
К списку объявлений
Регион

Крым

Город

Симферополь

Изображения
Скачать изображения (33)
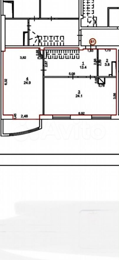
Планировка
Планировка
Тип

Вторичка

Количество комнат

3

Площадь общая

123 м2

Площадь жилая

58 м2

Площадь кухни

24 м2

Этажность

9 / 10

Описание: Предлагаю к продаже 3 комнатную видовую двухуровневую квартиру расположена на 9 и 10 м этаже ЖК Таврический . Площадь квартиры 123,9 кв.м. Установлен газовый котёл, который работает на подачу горячей воды и отопление; что очень комфортно и экономично! На полу стяжка, стены оштукатурены, электрика в квартиру заведена. ЖК Таврический расположен по ул. Битакская вблизи от центра города - это современный, развитый жилой комплекс с закрытой территорией с красивым ландшафтным дизайном и зоной отдыха, хорошо развитой инфраструктурой (спортивная и детская игровая площадки, магазин, паркинг). Удобная транспортная развязка.
Разработан индивидуальный дизайн проект .
Стоимость

17 000 000 ₽

138 211 ₽/м²
Актуальность объекта:
Обновлено: 15 мая 24, 01:39
Размещено: 08 мая 24, 01:39