Торговое помещение, Ресторан, Гостиница

Адрес скрыт
К списку объявлений
Регион

Ростовская область

Город

Ростов-на-Дону

Район / Метро

Кировский

Изображения
Скачать изображения (11)
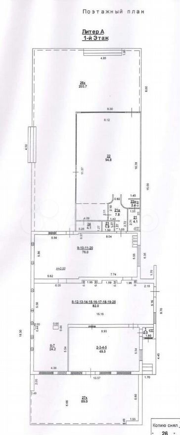
Планировка
Планировка
Площадь общая

650 м2

Этажность

1 / -

Описание: Продажа от собственника, г. Ростов на Дону, ул. Левобережная, 1, бывшее здание общепита 650 кв.м (легендарное кафе "Причал", 1969г) на своих 9 сотках+свободный участок 11 соток, продажа целиком 120 млн. р.,торг, возможен обмен.
Стоимость

120 000 000 ₽

184 615 ₽/м²
Актуальность объекта:
Обновлено: 21 мая 24, 14:05
Размещено: 24 октября 23, 12:46