3-к. квартира, 117,5 м², 3/6 эт.

Адрес скрыт
К списку объявлений
Регион

Калининградская область

Город

Калининград

Район / Метро

Центральный

Изображения
Скачать изображения (30)
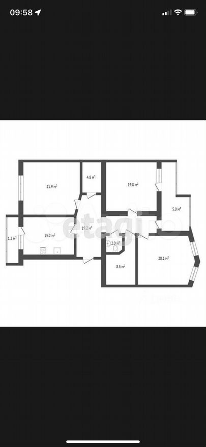
Планировка
Планировка
Тип

Вторичка

Количество комнат

3

Площадь общая

117 м2

Площадь кухни

20 м2

Этажность

3 / 6

Описание: ‼️‼️Агенствам не беспокоить‼️‼️‼️

Продаётся квартира в престижном Центральном районе города Калининграда.

Дом полностью кирпичный. Квартира ухоженная, очень тёплая. Удобная и функциональная планировка. Комнаты все светлые и просторные. Общая площадь 117,5кв. м. Комнаты изолированные, два санузла, а также кухня 20 кв. м. Один балкон выходит из кухни во двор. Большая застекленная лоджия выходит на противоположную сторону дома, с видом на 49 лицей. Имеется большая гардеробная.

✅ Отопление автономное от двухконтурного немецкого газового котла.

✅ Просторный подземный паркинг. (Продается отдельно)

✅ Закрытая территория дома огорожена металлическим забором с калитками, оборудованными системой контроля доступа на территорию, а также автоматическими откатными воротами. Круглосуточно находится дежурный охранник.

✅ Шаговая доступность Лицей 49 ( напротив), Сбербанк, Церковь, Медицинский центр, супермаркет « Виктория», Женская консультация, Захаровский рынок.

Квартира находится в развитом зелёном районе города Калининграда, в котором есть все для комфортного проживания.

• На плане квартира в первозданном виде. По факту кухня расширенная
Стоимость

16 000 000 ₽

136 752 ₽/м²
Актуальность объекта:
Обновлено: 21 мая 24, 14:12
Размещено: 18 ноября 23, 11:44