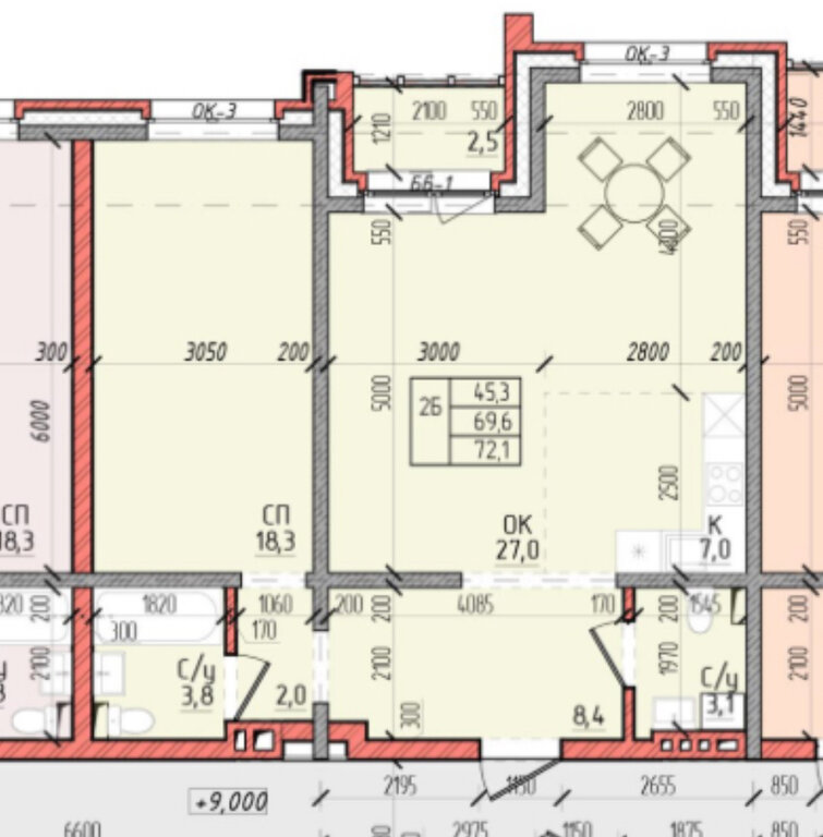
2-комнатная квартира: Иркутск, предместье Глазково, жилой комплекс Онегин (72 м²)

Адрес скрыт
К списку объявлений
Регион

Иркутская область

Город

Иркутск

Изображения
Скачать изображения (5)
Тип

Новостройка

Количество комнат

2

Наименование ЖК

Онегин

Площадь общая

72 м2

Площадь жилая

45 м2

Площадь кухни

7 м2

Этажность

4 / 8

Описание: Продам видовую квартиру в ЖК Жилой квартал
Онегин БС10. Все окна выходят на Ангару с видом на набережную и остров Юность.
Квартира в предчистовой отделке White box (полностью оштукатурена, ошпаклевана, полусухая стяжка пола). Возведена перегородка из кирпича между кухней и комнатой. Выполнена максимально разводка электрики, кабелей для интернета и телевидения. Осталось только сделать чистовую отделку. В доме два лифта, во дворе отличная детская площадка. Всего 8 этажей.
Подходит под ипотеку, оформление по дду напрямую от застройщика.
Стоимость

12 600 000 ₽

175 000 ₽/м²
Актуальность объекта:
Обновлено: 21 октября 25, 15:22
Размещено: 21 октября 25, 15:22