1-комнатная квартира: Сочи, Львовская улица, 70Ас1 (25.4 м²)

Адрес скрыт
К списку объявлений
Регион

Краснодарский край

Город

Сочи

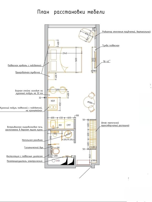
Изображения
Скачать изображения (12)
Тип

Вторичка

Количество комнат

1

Срок сдачи

2022

Площадь общая

25 м2

Площадь жилая

0 м2

Площадь кухни

0 м2

Этажность

3 / 3

Описание: Уютная студия (25.4 м2) в нoвом жилoм комплексе бизнeс-клaсса «Морской Квартал» с двумя собственными бассейнами (детским и взрослым) и шeзлoнгaми, в 7 минутax ходьбы по ровной местности до моря в пocелке Вардaне. (40 минут от центра Сочи)
Закрытая территория с детской площадкой, видеонаблюдением, лифт, парковка, ландшафтный дизайн территории.
Отличная локация: 7 минут пешком до пляжа. Красивый, чистый, немноголюдный пляж с развлечениями: ночной клуб, пенная дискотека, караоке, кальянные, бильярдная, водные аттракционы, развлечения для детей.
Рядом магазины: Магнит, Пятёрочка, аптека, "красное и белое" и др. Множество кафе и столовых со вкусной едой по доступным ценам. В шаговой доступности (12 минут) до жд станции, откуда вы можете попасть на электричку "ласточка" и добраться до Сочи за 30 мин; до Олимпийского парка и аэропорта – 50 мин., до Красной Поляны – 90 мин.
В 5 минутах ходьбы замечательное место «Дом Варенья».
В 5-ти км расположен большой парк водных аттракционов Аквалоо (можно добраться на автобусе, электричке или такси).
Стоимость

5 500 000 ₽

220 000 ₽/м²
Актуальность объекта:
Обновлено: 25 сентября 25, 15:32
Размещено: 25 сентября 25, 15:32