3-к. квартира, 54,2 м², 1/5 эт.

Адрес скрыт
К списку объявлений
Регион

Пермский край

Город

Пермь

Район / Метро

Мотовилихинский

Изображения
Скачать изображения (18)
Планировка
Планировка
Тип

Вторичка

Количество комнат

3

Площадь общая

54 м2

Площадь жилая

40 м2

Площадь кухни

5 м2

Этажность

1 / 5

Описание: АГЕНТОВ БЕЗ ПОКУПАТЕЛЕЙ ПРОШУ НЕ БЕСПОКОИТЬ!

1. Встречный вариант УЖЕ есть!
2. Срок выезда из квартиры минимальный.
3. Все документы в наличии.
4. Ограничений по собственнику и квартире НЕТ.
5. Квартира в собственности с 23.12.2010

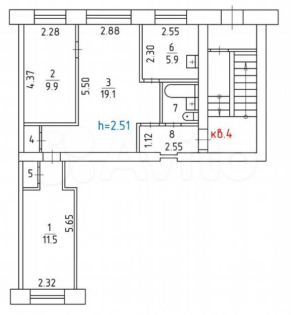
3-комнатная квартира на 1-м этаже в 5-ти этажном доме.

г. Пермь, ул. Дружбы, д. 4

Общая площадь: 54,2 кв. м

Продаю квартиру в доме 1960 года постройки. Один взрослый собственник. Прописан только собственник.

Возможна продажа с мебелью (как есть). Скидка/доплата за мебель отсутствует.

Развитая социальная инфраструктура в шаговой доступности (школы, детские сады, больницы, сетевые магазины, дом быта Агат).

Особенности дома и квартиры:
- дом газифицирован, в квартире имеется газовая плита;
- по программе капитального ремонта в доме заменены канализационные трубы, крыша;
- перепланировок квартиры НЕ было, все стены в исходном виде, включая две встроенные кладовые;
- в качестве бонуса есть маленькое подполье с доступом из квартиры;
- стояки воды заменены на полипропиленовые;
- счётчики на воду недавно заменены на новые;
- счётчик на газ НЕ установлен;
- электрический счётчик трёхтарифный;
- потолок в большой комнате и прилегающему коридору натяжной;
- 3 из 4 окон заменены на пластиковые;
- дверцы "хрущёвского холодильника" заменены на пластиковые;
- 2 из 3 межкомнатных дверей заменены на новые.

АГЕНТОВ БЕЗ ПОКУПАТЕЛЕЙ ПРОШУ НЕ БЕСПОКОИТЬ!
Стоимость

5 200 000 ₽

96 296 ₽/м²
Актуальность объекта:
Обновлено: 20 мая 24, 10:39
Размещено: 11 января 24, 10:10