2-к. квартира, 59,1 м², 18/25 эт.

Адрес скрыт
К списку объявлений
Регион

Нижегородская область

Город

Нижний Новгород

Изображения
Скачать изображения (2)
Тип

Новостройка

Количество комнат

2

Площадь общая

59 м2

Площадь жилая

25 м2

Площадь кухни

17 м2

Этажность

18 / 25

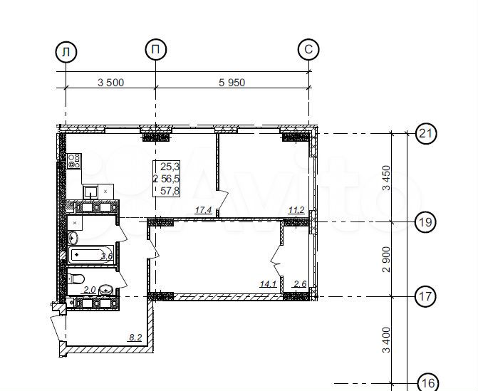
Описание: Продается квартира 2+ с раздельным санузлом!!! в ЖК "Анкудиновский парк", дом 42. Сдача дома 1 кв/2024г. Дом введен в эксплуатацию, передача дольщикам - март. Квартира по переуступке! Подходит под льготную семейную и IТ ипотеку. Общая площадь 57, 8 м2 , две изолированные комнаты 11, 2 м2 и 14, 1 м2., кухня-гостиная 17,4м2, единственный вариант планировки в раздельным санузлом!. В квартире сделан качественный ремонт от застройщика, обои под покраску, на полу ламинат, санузел в плитке, установлена сантехника, кухонный гарнитур с встроенной варочной панелью и духовкой. В доме 2 грузовых лифта и 2 пассажирских лифта, вокруг дома благоустроенная территория, детские площадки. Жилой комплекс ЖК " КМ Анкудиновский Парк " расположен вдоль границы Советского района г.Нижнего Новгорода, рядом с Анкудиновским шоссе, лесным массивом, ботаническим садом. В микрорайоне работают детские сады, школа, продуктовые магазины . Благоустроены детские площадки.

Услуги проверенного агентства включены в стоимость.
Стоимость

7 500 000 ₽

127 119 ₽/м²
Актуальность объекта:
Обновлено: 25 апреля 24, 17:13
Размещено: 14 февраля 24, 12:54