Регион

Волгоградская область

Город

Волгоград

Район / Метро

Краснооктябрьский

Изображения
Скачать изображения (7)
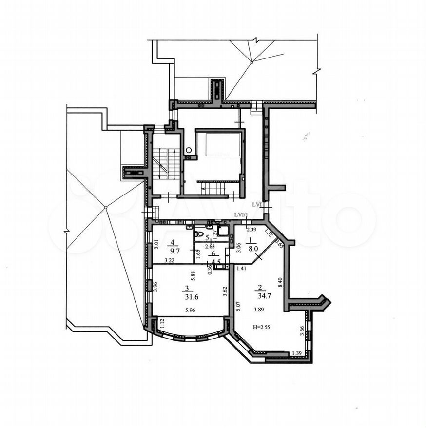
Планировка
Планировка
Площадь общая

92 м2

Этажность

11 / -

Описание: Продаётся пентхаус 92м2, назначение архитектурная мастерская, последний этаж, идеально для спокойной и размеренной работы. Расположен на крупной транспортной развязки, Менделеева, 39 гвардейская, 2я продольная. Из окон открывается вид на храм Иоанна Крондштадского, Волгу . В доме масса магазинов, спорт клуб, кафе и тп. Большая детская площадка с футбольным полем. С лёгкостью можно перевести данное помещение в жильё, все показатели соответствуют. Для сведения- следующие предложения за м2 в этом доме вдвое дороже. Собственник, чистая продажа.
Стоимость

5 550 000 ₽

60 326 ₽/м²
Актуальность объекта:
Обновлено: 17 мая 24, 00:20
Размещено: 29 января 24, 17:24