Коттедж 80 м² на участке 8 сот.

Адрес скрыт
К списку объявлений
Регион

Башкортостан

Город

Уфа

Изображения
Скачать изображения (6)
Планировка
Планировка
Планировка
Материал стен

Сэндвич-панели

Расстояние до города

20

Расстояние до города

20

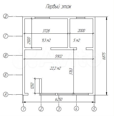
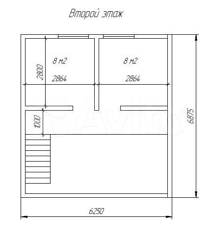
Площадь общая

80 м2

Площадь участка

8 м2

Этажность

- / 2

Описание: Предлагаю вашему вниманию индивидуальный дом 80кв.м из СИП-панелей на земельном участке 8 соток в ТСН Радужное (Шамонино).

Что входит в указанную стоимость:
Готовый дом из СИП-панелей
Земельный участок 8 соток в ТСН Радужное

Ваши возможности:
Изменение проекта на этапе строительства
Приобретение готового дома или по договору подряда (2 месяца)

Наши возможности:
Аккредитация Застройщика во всех банках
Наличие земельных участков, готовых и строящихся домов в Шмидтово Бурцево Самохваловке Нагаево Акбердино Дорогино Максимовка
Стоимость

3 780 000 ₽

47 250 ₽/м²
Актуальность объекта:
Обновлено: 08 мая 24, 15:51
Размещено: 08 мая 24, 15:51