Свободного назначения, 705 м²

Адрес скрыт
К списку объявлений
Регион

Хабаровский край

Город

Хабаровск

Район / Метро

Железнодорожный

Изображения
Скачать изображения (27)
Планировка
Планировка
Планировка
Планировка
Планировка
Площадь общая

705 м2

Этажность

4 / -

Описание: Кирпичное 4-х этажное здание, с мансардой и подвальным помещением, 2000 года постройки. Перекрытия железобетонные. Обратите внимание, цена 1 кв.м. = 63 000 руб. По Хабаровску цена 1 кв.м.= 1 30 000 руб.
Здание огорожено кирпичным забором. На каждом этаже имеются гигиенические комнаты (туалеты). Перед здание парковка на 15 автомашин. За зданием свободная площадь порядка 6 соток. В помещениях ремонт, система кондиционирования воздуха.
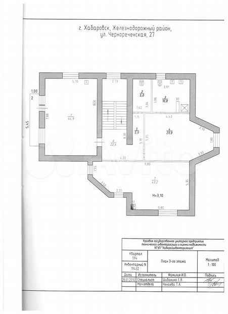
В цокольном этаже расположена кухня – столовая.
На первом этаже два раздельных помещения (кабинета).
На втором этаже большой зал со свободной планировкой, помещение кабинет, отдельное большое помещение свободной планировки и душевая комната на четыре помывочных мест. Балкон.
На третьем этаже большое помещение –кухни с балконом, большое помещение свободной планировки, общий туалет, комната для проживания и через нее комната, где размещено оборудование для стирки туалет и душевая.
Четвертый этаж помещение свободной планировки с туалетной и раздельно душевой комнатой и комнатой для вещей.
В подвале два помещения, где возможно разместить сауну и тренажерный зал.
Стены выполнены из кирпича очень широкие.
Технические параметры.
Разрешенное потребление электроэнергии 85кВт.
Городской водопровод холодной воды.
Шамбо на 15 м.куб.
Фактическая реальная общая площадь здания 800 кв.м.
Первоначально отапливалось здание керосином, через котел производства Южной Кореи, который установлен в отдельном помещении цокольного этажа. С удорожание керосина перешли на обогревание электрическими конвекторами. Подвода газа в данном районе не предусмотрено.
Отопление здания осуществляется по средством электрических конвекторов. Экономически очень выгодно- в месяц зимой до 15000-20000 рублей, за зиму с октября по апрель в среднем выходит чуть более 130000 рублей с учетом освещения.
Земля 1000 кв.м. в собственности, возможно на имеющейся территории выстроить капитальное дополнительное здание, т.к. земля относится к землям населенных пунктов (г.Хабаровск).
Инфрастуктура.
Рядом находятся следующие объекты:
С левой стороны частный жилой дом, с права Огороженная частная резиденция, далее по выходу на трассу церковь. На против церкви, здание торгового представительства.
Остановка сбербанк общественного транспорта в 3 минутах пешком. Остановка "Большая" в 3 минутах пешком.
Напротив, с другой стороны трассы, Торгово-развлекательный комплекс «Большая Медведица» с многочисленными торговыми точками и остановкой общественного транспорта. Рядом офис-отделение Сбербанка, развитая инфраструктура. Данный транспортный узел является стыковым соединением направлений четырех районов Северный, Южный, Центральный и Железнодорожный с направлением на аэропорт.
Напротив торгово-развлекательного комплекса «Большая Медведица» -Торговый комплекс Контур Будущего. Собственник один, обременений (арестов, залога) нет.
Возможное использование под любой вид деятельности. Рассмотрим варианты обмена (недвижимость: коммерческая и квартиры, авто + деньги). По цене договоримся. Оперативный показ. Все вопросы можно адресовать на WhаtsАрр.
Стоимость

44 963 369 ₽

63 778 ₽/м²
Актуальность объекта:
Обновлено: 03 мая 24, 01:52
Размещено: 14 февраля 24, 14:47