Описание:
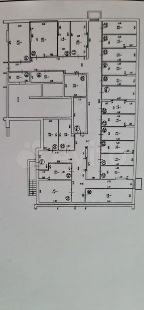
Продаётся подвал в ЖК Арт квартал. Площадь 16.5 кв.метров На чертеже номер 15. Сухой, есть свет. Вход на территорию комплекса по чип ключу, также вход в подвал по чип ключу. Хорошая входная дверь от застройщика. ЖК охраняется круглосуточно, есть видеонаблюдение. Это самый большой подвал в этом ЖК. Разумный торг уместен.
Обновлено: 13 мая 24, 19:27 Размещено: 13 мая 24, 19:27
Мы используем файлы cookies для улучшения работы сайта. Оставаясь на нашем сайте, вы соглашаетесь с
условиями
использования файлов cookies. Чтобы ознакомиться с нашими Положениями о конфиденциальности и об
использовании
файлов cookie, нажмите здесь.