Торговая площадь, 16.1 м²

Адрес скрыт
К списку объявлений
Регион

Башкортостан

Город

Уфа

Район / Метро

Кировский

Изображения
Скачать изображения (3)
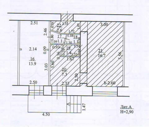
Планировка
Планировка
Площадь общая

16 м2

Этажность

1 / -

Описание: Продаётся помещение 16,1 кв.м
ул.Пархоменко 73 (угол с Достоевского) - центр города
Отдельный вход. Санузел.
Большой пешеходный трафик.
Подойдет под небольшой магазин, косметологический или массажный кабинет,
сервис центр, аптека, кулинария, хозтовары, суши, швейное ателье и т.д
Прямая продажа от собственника. В данный момент помещение сдано в аренду.
Аренда 25 000руб+ коммунальные примерно 2000 руб.
для просмотра помещения ЗВОНИТЕ - договоримся по времени.
Стоимость

3 450 000 ₽

215 625 ₽/м²
Актуальность объекта:
Обновлено: 14 мая 24, 13:57
Размещено: 14 мая 24, 13:57