1-к. квартира, 39,1 м², 24/25 эт.

Адрес скрыт
К списку объявлений
Регион

Башкортостан

Город

Уфа

Район / Метро

Ленинский

Изображения
Скачать изображения (40)
Тип

Новостройка

Количество комнат

1

Площадь общая

39 м2

Площадь жилая

14 м2

Площадь кухни

9 м2

Этажность

24 / 25

Описание: Продается просторная однокомнатная квартира с улучшенной предчистовой отделкой, шикарной планировкой в новом, живописном и экологически чистом мкр Затон Ленинского района г. Уфы, в новом сданном доме по ул. Гази Загитова, д. 11/2,
Квартира расположена на 24-м этаже нового 25ти этажного дома.
Дом 2022г постройки, монолитно-кирпичный, теплый с отличной шумоизоляцией, сдан в эксплуатацию.
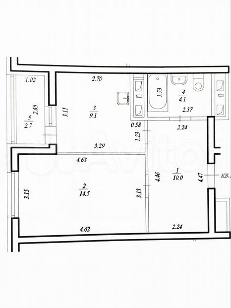
Общая площадь квартиры - 39.1 кв. м.
Жилая площадь - 14,5 кв.м.

-полы: стяжка под ламинат;
-стены: выровнены штукатуркой;

Индивидуальные счётчики отопления - большая экономия на коммунальных услугах.
На каждом радиаторе отопления установлены терморегуляторы - возможно установить комфортную температуру в каждой комнате.

Квартира с очень удачной планировкой: лоджия с панорамным остеклением из кухни, при входе в квартиру, слева просторный коридор под гардеробную.
Квартира светлая, за счёт расположения и больших окон, прекрасный панорамный вид, на окнах установлены детские замки.

Комнаты изолированные:
- просторная и светлая гостиная - 14,5 кв. м,
-кухня - 9,1 кв.м. (выход на застекленную лоджию, установлена металлическая раковина, смеситель, вентилятор вытяжной, подведены трубы ХВС и ГВС, );
-лоджия - 2,8 кв.м (утеплена, отделана декоративной штукатуркой "короед");
-прихожая - 10,0 кв.м;
-санузел - 4,1 (выполнена разводка и изоляция труб ХВС и ГВС, установлен полотенцесушитель, унитаз, вытяжной вентилятор, плафон освещения, розетка)
-высота потолков - 2,55 м.

РАЗВИТАЯ ИНФРАСТРУКТУРА:
- остановка автобусов в шаговой доступности. Автобусные маршруты: № 248, № 30, № 30к.
Время в пути на машине от дома до округа Галле занимает 10 минут.
К микрорайону проложена современная скоростная объездная автодорога, соединяющая трассу М7 и г.Уфа;
- поликлиника № 9, детская поликлиника № 6;
- детские сады № 97 и № 330;
- общеобразовательная школа № 128, кадетский корпус;
- В 2023 году запланировано строительство новой школы;
- В микрорайоне много продовольственных магазинов и супермаркетов, недалеко рынок Заречный.
- Рядом магазины: Дворик, Эвридей, Красное Белое, Пятёрочка, Озон, Яндекс Маркет, Монетка, Фармленд, Алексеевский, Улыбка радуги;
- Большая территория для парковки;
- Во дворе современные детская и спортивная площадки.

В квартире никто не прописан.
-Один взрослый собственник;
-Квартира без долгов;
-Мат. капитал не использовался.

!!! В услугах риелторов не нуждаюсь!!!
Являюсь собственником и продаю самостоятельно!
Стоимость

3 800 000 ₽

97 436 ₽/м²
Актуальность объекта:
Обновлено: 05 мая 24, 19:55
Размещено: 05 мая 24, 19:55