Свободного назначения, 121.5 м²

Адрес скрыт
К списку объявлений
Регион

Удмуртия

Город

Ижевск

Район / Метро

Устиновский

Изображения
Скачать изображения (9)
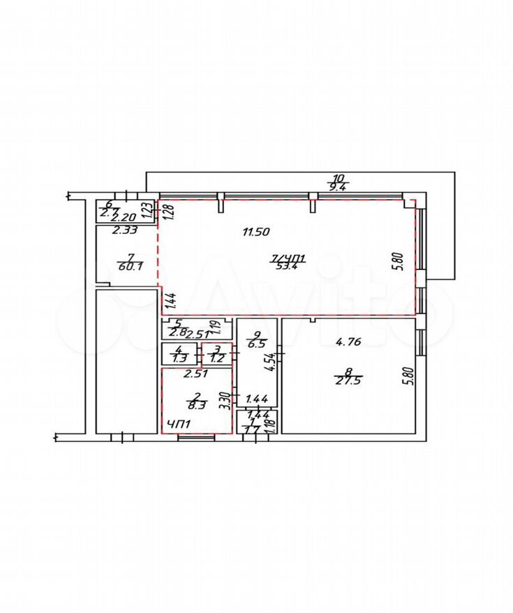
Планировка
Планировка
Площадь общая

121 м2

Этажность

1 / -

Описание: От СОБСТВЕННИКА
Продам нежилое помещение ( на данный момент используется как торговая площадь).

Полностью укомплектована арендаторами в формате ЭКО рынка

- золотая табакерка
- ижмолоко
- кондитерский отдел
- овощной отдел
- хозяйственный отдел
- мясной отдел

У помещения 2 входа, зона погрузки/разгрузки. Система кондиционирования, сигнализация, туалет, ХВС/ГВС. Хорошо обжитый район, магазин со своими постоянными покупателями.
Окупаемость 8 лет.
Стоимость

14 000 000 ₽

115 702 ₽/м²
Актуальность объекта:
Обновлено: 04 мая 24, 22:42
Размещено: 04 мая 24, 22:42