Коттедж 110 м² на участке 8 сот.

Адрес скрыт
К списку объявлений
Регион

Башкортостан

Город

Уфа

Изображения
Скачать изображения (8)
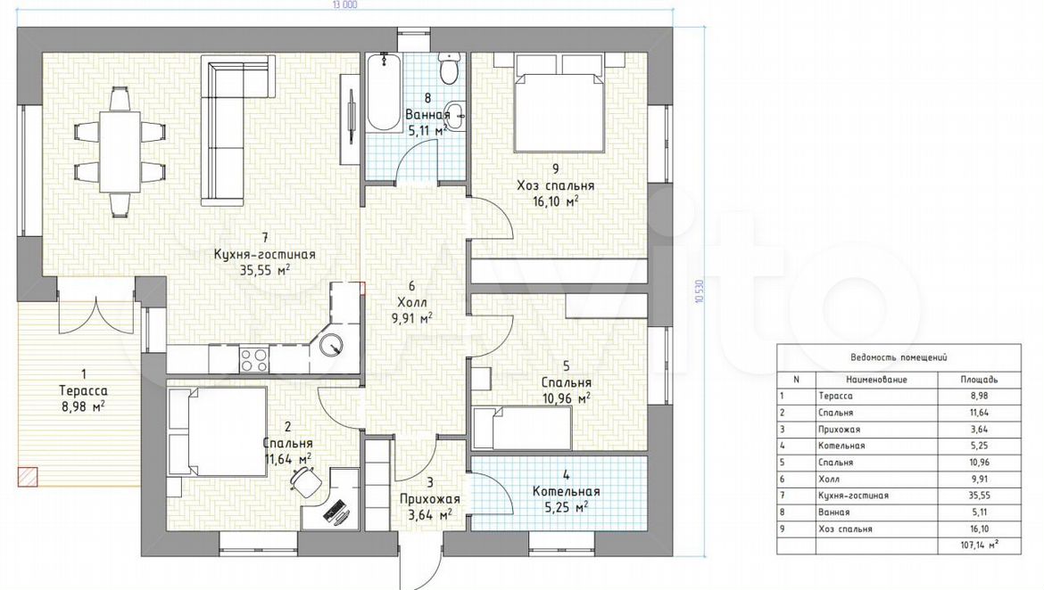
Планировка
Планировка
Материал стен

Кирпич

Расстояние до города

18

Расстояние до города

18

Площадь общая

110 м2

Площадь участка

8 м2

Этажность

- / 1

Описание: Дома от застройщика ИДМДОМ в новом коттеджном поселке АРХИТЕКТУРА!!!
Архитектура - это современный КП комфорт класса с развитой инфраструктурой (асфальтированный дороги, спортивные и детские площадки, тротуары и т.д.) с использованием инновационных архитектурных решений и планировок .
Территориально Архитектура расположена между Гудвилл парком и Нагаевским парком. Въезд со стороны деревни Бурцево (отсутствие пробок).

Спешите количество домов ограничено! Возможно приобретение по сельской ипотеке под 3%

Современный комфортабельный дом по проекту ИДМ 9 в предчистовой отделке на участке ИЖС 8 соток в деревне Шмидтово в новом КП комфорт класса АРХИТЕКТУРА!!!

🏡 ИДМ 9 — современный проект, загородного дома в стиле, дополненный террасой и вторым светом. Грамотно спроектированный и выполненный с соблюдением всех стандартов СНиП и ГОСТ. Приезжайте и убедитесь сами!

Цена участка 8 соток 2.8 млн.

Конструкция дома:

👉 Красный кирпич полнотелый, в наружной отделке облицовочный кирпич (производство Белебей), с новой текстурой Вавилон, баварская кладка .

👉 Перегородки выполнены из кирпича.

👉 Кровля металлочерепица с утеплением 200 мм, подшивы карнизов софиты с перфорацией.

👉 Плиты перекрытия с проветриваемым подпольем.

👉 Окна Rеhаu 70 профиль с немецкой фурнитурой.

👉 Современная планировка.

Коммуникации:

⭐ В доме: электричество, свет, вода.

⭐ На участке: колодец, шамбо.

⭐ Теплый пол из итальянской трубы Vаltек, конвекторы в подоконном пространстве, стальные радиаторы.

Отделка предчистовая!

⭐ Полусухая стяжка пола

⭐ Механизированная штукатурка стен

Дом можно купить по любой ипотечной программе. СЕЛЬСКАЯ Ипотека проходит.

⚒️ Срок сдачи дома — Ноябрь 2024 г.

✅ Официальная гарантия на дом 5 лет.

⚒️ ПОЧЕМУ НАС ВЫБИРАЮТ:

🔸 Компания "ИДМДОМ" — В строительстве с 2012 года;

🔸 Мы строим в разных направлениях и только из качественных материалов с соблюдением всех ГОСТ и СНиП. Возможно строительство такого же дома на Вашем участке;

🔸 Мы разрабатываем индивидуальные проекты, учитывая все ваши требования;

🔸 Возможность доведения дома до чистовой отделки в короткие сроки;

🔸Мы являемся аккредитованным партнером Сбербанк, ВТБ, Россельхозбанк;

🔸Возможна рассрочка: поэтапная оплата позволяет финансировать строительство коттеджа шаг за шагом по мере выполнения работ по возведению дома;

🔸При обращении к нам бесплатное юридическое сопровождение сделки под ключ;
Наши дома расположены в: Уфа, шамонино, зубово, цветы башкирии, федоровка, карпово, чесноковка, акбердино, нагаево, нагаевский парк, есенинский, девичья гора, иглино, миловка, михайловка, алкино, алкинские пруды, шмидтово, елкибаево, лебяжий, 8 марта, булгаково, преображенский, лекаревка, кляшево, мармылево, осоргино, осоргинский посад, таптыково, премьера, дема, лесная поляна, акманай, самохваловка, карпово, баланово, новоалександровка, максимовка и др
Стоимость

6 700 000 ₽

60 909 ₽/м²
Актуальность объекта:
Обновлено: 25 апреля 24, 07:37
Размещено: 21 ноября 23, 09:11