Дом 98 м² на участке 5 сот.

Адрес скрыт
К списку объявлений
Регион

Калининградская область

Город

Калининград

Изображения
Скачать изображения (6)
Планировка
Планировка
Планировка
Расстояние до города

13

Расстояние до города

13

Площадь общая

98 м2

Площадь участка

5 м2

Этажность

- / 2

Описание: ПРЯМАЯ ПРОДАЖА ДОМА БЕЗ ПОСРЕДНИКОВ ОТ ЗАСТРОЙЩИКА.

Продается 2-х этажный дом 98 кв.м. в качественном сером ключе в п.Петрово.
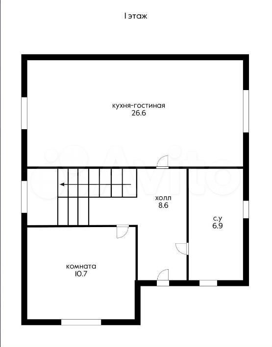
Удобная планировка для семьи из 3-4 человек: на 1 этаже - холл, котельное помещение, кухня-гостиная, спальня, санузел; на 2 этаже - 3 спальни и санузел.
Правильной формы, ровный и сухой земельный участок, на котором комфортно сможет разместиться в будущем баня, беседка или гараж.

Отличные подъездные пути - 80 метров до асфальта, рядом магазины и остановка находятся в пешей доступности - около 10 мин.
В 1,5 км находится школа и детский сад.

⚒ Комплектация дома:
• фундамент ленточно-монолитный
• кровля металлочерепица утеплена минеральной ватой, установлена водосточная система
• фасад утеплен каменной ватой 5 см и обшит декором.
• установлены качественные окна
• внутри дома разведена сантехника и электрика, по всему первому этажу тёплый пол, на втором этаже выводы под радиаторы
• чистовая стяжка пола и известковая штукатурка стен

В поселке есть 15кВт электричества и возможно подключение газа (около 200 тыс р). Дом подходит под ипотеку.

🏠ВОЗМОЖНО СТРОИТЕЛЬСТВО ДОМА НА ЗАКАЗ ЗА 2,5-3 МЕСЯЦА
✔ за 3 дня подберем подходящий земельный участок
✔ бесплатно и за 5 дней подготовим индивидуальный проект
✔ работаем всегда по договору и с гарантией
✔ согласованная смета перед началом строительства никогда не меняется
✔ при необходимости, арендуем для вас жилье за свой счет на время всего строительства
✔ работаем максимально открыто и прозрачно, всегда можно посмотреть наши строящиеся дома и пообщаться с нашими клиентами

🔥Также у вас есть возможность взять выгодную ипотеку под строительство дома, включая земельный участок, БЕЗ ПЕРВОНАЧАЛЬНОГО ВЗНОСА по льготной ставке от 5% и через 2,5 мес начать делать чистовой ремонт в своем доме.

☎Звоните прямо сейчас и получите бесплатную консультацию у нашего ипотечного брокера.
Стоимость

6 280 000 ₽

64 082 ₽/м²
Актуальность объекта:
Обновлено: 29 апреля 24, 14:45
Размещено: 24 января 24, 15:36