Регион
Пермский край
Город
Пермь
Район / Метро
Дзержинский
Изображения
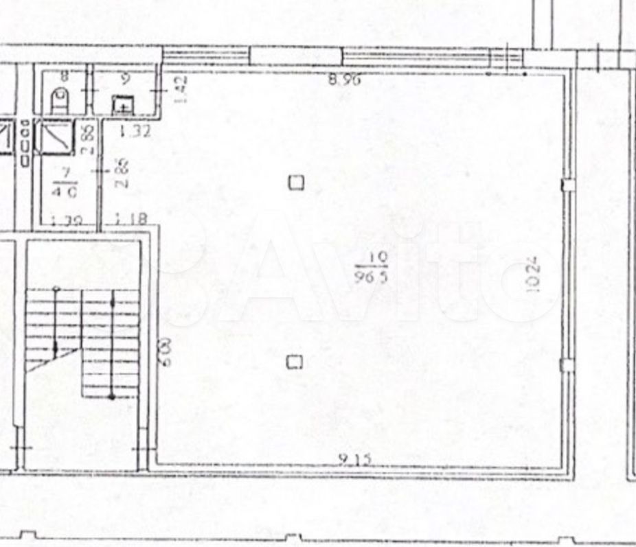
Скачать изображения (11)Планировка
Площадь общая
103 м2
Этажность
0 / -
Также рассмотрим предложения об аренде данного помещения.
Звоните, пишите и договоримся на просмотр.
Стоимость
Контакты
Актуальность объекта:
11 000 000 ₽
106 796 ₽/м²
Обновлено: 28 июля 24, 11:32
Размещено: 28 июля 24, 11:32
Размещено: 28 июля 24, 11:32