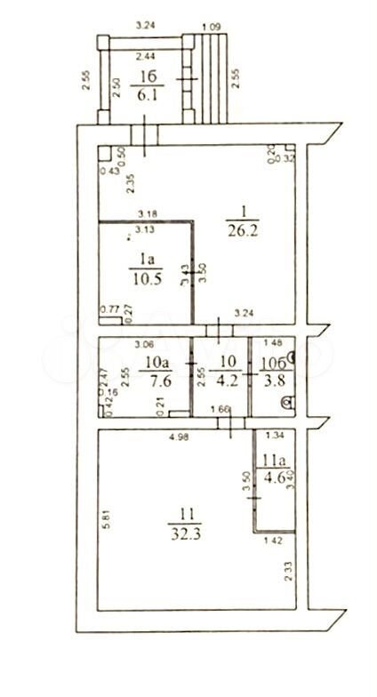
Свободного назначения, 95.3 м²

Адрес скрыт
К списку объявлений
Регион

Иркутская область

Город

Иркутск

Район / Метро

Свердловский

Изображения
Скачать изображения (29)
Планировка
Планировка
Площадь общая

95 м2

Этажность

1 / -

Описание: Продам помещение на 2-й линии с отдельным входом.

Напротив входа парковка для Ваших клиентов.
В стоимость входит мебель, которая на фото.

Показ в любое время!

Звоните!
Стоимость

6 000 000 ₽

63 158 ₽/м²
Актуальность объекта:
Обновлено: 01 мая 24, 09:04
Размещено: 01 мая 24, 09:04