Свободного назначения, 285.1 м²

Адрес скрыт
К списку объявлений
Регион

Белгородская область

Город

Белгород

Район / Метро

Западный

Изображения
Скачать изображения (20)
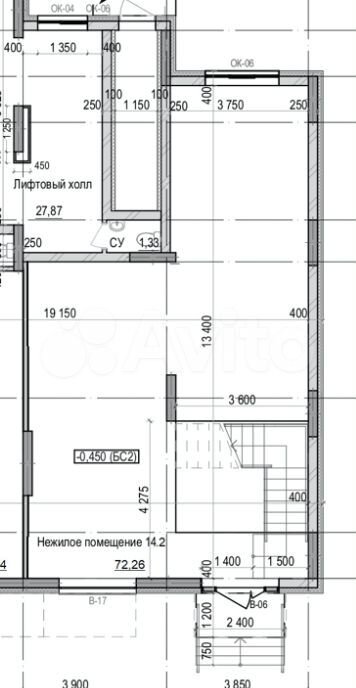
Планировка
Планировка
Площадь общая

285 м2

Этажность

1 / -

Описание: Продаётся двух уровневое нежилое помещение, для размещения офиса, фитнес студии или ресторана.

Помещение расположено в новостройке - ЖК ИМПЕРИАЛ.

Помещение имеет отдельный удобный вход со стороны улицы Пушкина, в связи с чем Вашим сотрудникам и персоналу не предётся тратить время на долгое хождение по корридорам и лифтам чтобы добраться до помещения.

Первый этаж имеет площадь - 71 кв/м. Высота потолка - 2 800 мм.

Второй этаж имеет площадь - 213 кв/м. Высота потолка - 2 620 мм.

В помещении предусмотрена электрическая сеть 380 вольт, мощностью энергопринимающих устройств - 23 кВт.

На втором уровне имеются изолированные помещения для размещения небольшой кухни, хранения канцтоваров, архива. На первом и втором уровне предусмотрены санузлы и места для удобного размещения зоны ожидания клиентов.

- Жилой комплекс расположен в самом центе Белгорода на пересечении ул. Свято-Троицкий бульвар и ул. Пушкина.

В шаговой доступности Белгородский государственный университет (БГУ), парк и набережная реки, супермаркеты, торговые центры, кафе и рестораны. В 2-х минутах ходьбы остановка «Родина» на центральной улице Белгорода – проспект Богдана Хмельницкого. Всего 5 минут неспешным шагом, и Вы на центральной площади Белгорода у здания правительства области и мемориала Вечного огня.
Стоимость

48 467 500 ₽

170 061 ₽/м²
Актуальность объекта:
Обновлено: 15 июля 24, 12:17
Размещено: 21 февраля 24, 13:09