2-к. квартира, 45,4 м², 1/5 эт.

Адрес скрыт
К списку объявлений
Регион

Татарстан

Город

Казань

Район / Метро

Яшьлек

Расстояние до ближ. станции

1.1 км

Изображения
Скачать изображения (20)
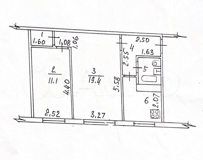
Планировка
Планировка
Тип

Вторичка

Количество комнат

2

Площадь общая

45 м2

Площадь жилая

30 м2

Площадь кухни

6 м2

Этажность

1 / 5

Описание: Продаётся просторная 2-комнатная квартира в Ново-Савиновском районе города Казань. Находится по адресу: ул. Короленко 45. Отличное место, хороший ремонт.
По площади:
- общая площадь квартиры составляет 45.4 м2
- жилая площадь 30,5 м2
- кухня 6 м2
Есть гардеробная
Чистый подъезд, добрые порядочные соседи. Благоустроенный двор, отличная детская площадка. Много парковочных мест.
УДАЧНОЕ МЕСТОРАСПОЛОЖЕНИЕ. В 15 минутах от метро Яшьлек и Козья Слобода.
Рядом с домом есть множество продуктовых магазинов, спортивные площадки, комплексы, торговые центры, поликлиники, школы и детские сады.
Хорошие подъездные пути, отличное местоположение, что позволяет добраться в любую точку города очень быстро.
Один взрослых собственник, чистая продажа, вся сумма в договоре, быстрый выход на сделку, без обременений, долгов
Стоимость

6 000 000 ₽

133 333 ₽/м²
Актуальность объекта:
Обновлено: 26 апреля 24, 17:25
Размещено: 26 апреля 24, 17:25