Дом 179 м² на участке 10 сот.

Адрес скрыт
К списку объявлений
Регион

Калининградская область

Город

Калининград

Район / Метро

Центральный

Изображения
Скачать изображения (23)
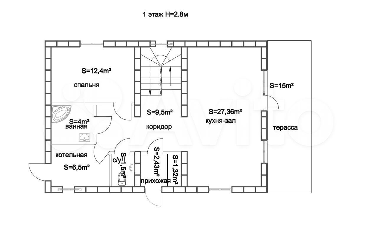
Планировка
Планировка
Планировка
Площадь общая

179 м2

Площадь участка

10 м2

Этажность

- / 2

Описание: Продаю теплый, светлый, уютный дом в центральном районе города. Строили для себя. Фундамент ленточный сборный, плита 10 см с утеплителем и защитой от грызунов. Несущие стены D500 толщина 400 мм.

На первом этаже: прихожая, кухня - гостиная, спальня, котельная, раздельный санузел, душевая, лестница на второй этаж, кладовая, терраса.

Второй этаж: 3 спальни, большой совмещённый санузел, большая гардеробная, 2 балкона.

В комнатах на стенах обои, пол ламинат, санузлы плитка.
Дом строился для себя, есть фото всех строительных этапов.

Дом расположен на южную сторону.

Участок на первой линии.Соседи только с одной стороны.Дорога и участок освещены.

Участок правильной прямоугольной формы.

Въезд на участок с городской дороги.
Остановка общественного городского транспорта автобус N14 в 10 метрах от дома, магазины в 200м по тротуару. До рыбалки на р. Преголе 500м, до озеро Карповское (разрешено купание) 900м.

На участке 2 теплицы, помещение для хранения садового инвентаря, яма для техобслуживания автомобиля. Фруктовые деревья: грецкий орех, абрикос, яблони, груши, сливы, черешня, алыча, вишни; кустарники: виноград, крыжовник, малина, черная смородина, гибрид крыжовника со смородиной. Земля плодородный грунт.

Своя скважина.
Три септика для раздельного водоотведения.

Твердотопливный котёл.

Участок огорожен по всему периметру бетонным забором высотой 2м.
Проводятся работы по газификации общества. Уже закуплено ШРП.

В собственности более 5 лет. Один собственник. Подходит под любые виды расчета. Полная стоимость в договоре.
Стоимость

8 500 000 ₽

47 486 ₽/м²
Актуальность объекта:
Обновлено: 03 июля 24, 09:42
Размещено: 30 сентября 23, 08:53