Коттедж 125 м² на участке 5 сот.

Адрес скрыт
К списку объявлений
Регион

Татарстан

Город

Казань

Изображения
Скачать изображения (4)
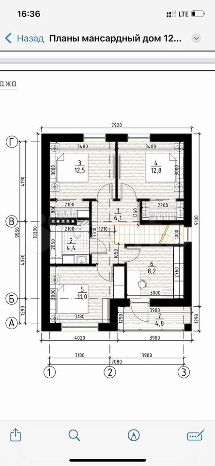
Планировка
Планировка
Планировка
Материал стен

Бревно

Расстояние до города

13

Расстояние до города

13

Площадь общая

125 м2

Площадь участка

5 м2

Этажность

- / 2

Описание: Продам дом 125кв.м на участке 5 сот в СНТ «Горизонт».
Дом строится по каркасной технологии, с соблюдением всех СНИП. В данный момент на этапе фундамента, земля в собственности.
Все коммуникации - газ, вода - скважина, электричество.
До центра города удобно добираться на электричке - до станции 7 мин пешком! Также рядом есть остановка автобуса и продуктовый магазин.
Соседи живут круглогодично.

Продажа от ИП, проходит по Семейной ипотеке, Господдержке, IТ ипотеке.
Гарантия на дом 5 лет.
Стоимость

8 100 000 ₽

64 800 ₽/м²
Актуальность объекта:
Обновлено: 22 апреля 24, 13:27
Размещено: 22 апреля 24, 13:27